Plan 01-004

255,15

1

Garages

1

Niveaux

1

Chambres

5

Salles d'eau

Disponible : en fichier PDF seulement

Téléchargement: Instantané

Maison Moderne 04 est une invitation à l'art de vivre contemporain. Cette villa à étage,  allie harmonieusement design épuré et fonctionnalité pour offrir un cadre de vie exceptionnel.
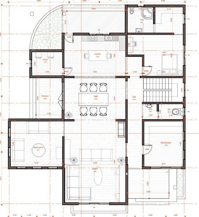
Un rez-de-chaussée dédié à la convivialité
Dès l'entrée, vous êtes enveloppé d'une atmosphère chaleureuse. La terrasse principale donne sur une vaste salle à manger puis un séjour baigné de lumière naturelle, prolongé par une cuisine ouverte. Cet espace de vie ouvert est idéal pour recevoir famille et amis. Un WC indépendant offrant praticité et fonctionnalité.
Une chambre visiteur pouvant être convertie en Une suite parentale
Pour votre plus grand confort, elle dispose d'une chambre visiteur spacieuse et conviviale, comprenant un dressing et une salle de bains privative. Cet espace dédié au bien-être offre un véritable havre de paix à vos invités.

Maison Moderne MOD 02-008

200,000.00 XAF

MOD 02-008

200,000.00 XAF
250,000.00 XAF
250,000.00 XAF

Vous pourriez également aimer

·  Plan de masse (à adapter à votre contexte) : C'est une vue aérienne du terrain. Il montre l'implantation de la construction (maison, garage, etc.), les raccordements aux réseaux (eau, électricité, assainissement), les limites de propriété et les accès.

·  Plans des coupes : Ils permettent de comprendre la hauteur du bâtiment par rapport au terrain naturel. Ils montrent les pentes, la profondeur des fondations et la hauteur totale de la construction.

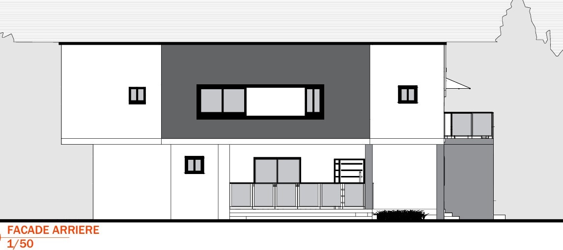
·  Plans des façades : Chaque façade du projet (avant, arrière, côtés) est représentée. Ces plans détaillent l'aspect extérieur : ouvertures (portes et fenêtres), matériaux de parement, balcons, toiture, etc.

·  Plans des niveaux (ou plans de l'intérieur) : Ils représentent l'aménagement de chaque étage. On y voit la disposition des pièces, l'emplacement des murs, des portes, des fenêtres, et les cotes (dimensions) des espaces.

·  Plan de la toiture : Il détaille la configuration de la toiture, la pente, les matériaux de couverture et les éventuels éléments comme les cheminées ou les panneaux solaires.

Constitution du fichier

   4

Salles d'eau

4

Chambres

1

Garages

2

Niveaux

XX,00

   m²

Description

Description compémentaire

Duplex Moderne et Spacieux

Le Rez de chaussée comprend:

  • 01 Chambre Moderne et confortable dotée d'un Dressing et d'une Salle d'eau
  • 01 salles d'eau commune moderne et fonctionnelle
  • 01 Cuisine ouverte
  • 01 Salle à manger conviviale pour vos repas en famille
  • 01 Séjour vaste et chaleureux 

 

L'étage comprend :

  • 01 Vaste Suite Parentale 
  • 01 salle d'eau commune moderne et fonctionnelle
  • 02 Chambres dotée d'une salle d'eau et d'un Dressing
  • 01 Salon familiale  01 Séjour

 

Yaoundé

Cameroun

masterdesign0001@gmail.com

+237699048083

Store Regulations

Privacy policy

Delivery

Returns & exchanges

Website created in white label responsive website builder WebWave.