Plan 01-011

255,15

1

Garages

1

Niveaux

1

Chambres

1

Salles d'eau

Ajouter au panier

Fichier PDF

Fichier DWG et DXF

Payer avec Mobil Money (F CFA)

Payer avec Mobil Money (F CFA)

50.000 XAF

100.00 USD

Duplex Moderne de 05 Chambres, chacune avec Salle d'eau et Dressing, 01 vaste Séjour et 01 Salle à Manger donnant sur une Cuisine ouverte, 01 Cellier, 01 Buanderie, 01 WC visiteur, 01 Salle d'étude.

Disponible : en fichier PDF et DWG seulement

Téléchargement: Instantané

MOD 02-006

MOD 02-006

Vous pourriez également aimer

· Plan de masse (à adapter à votre contexte) : C'est une vue aérienne du terrain. Il montre l'implantation de la construction (maison, garage, etc.), les raccordements aux réseaux (eau, électricité, assainissement), les limites de propriété et les accès.

·  Plans des coupes : Ils permettent de comprendre la hauteur du bâtiment par rapport au terrain naturel. Ils montrent les pentes, la profondeur des fondations et la hauteur totale de la construction.

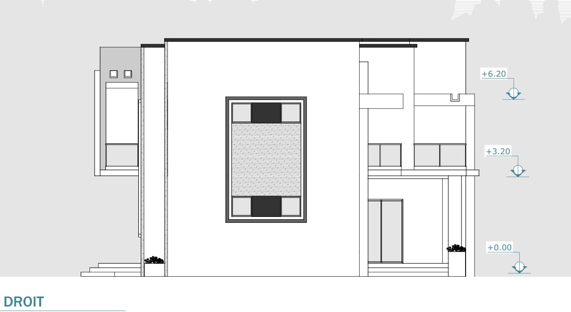
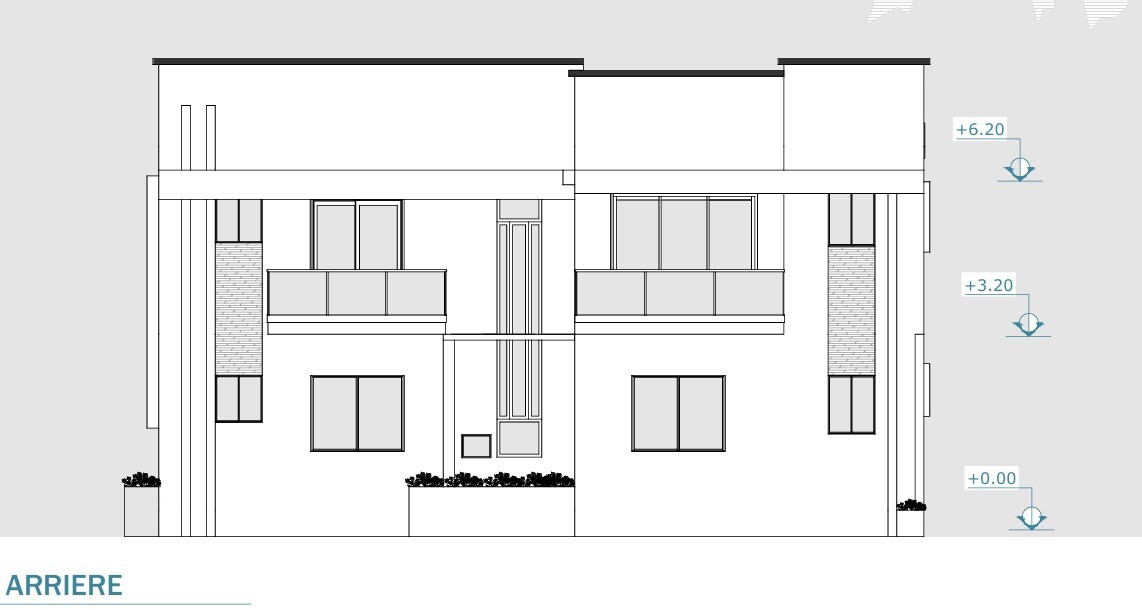
·  Plans des façades : Chaque façade du projet (avant, arrière, côtés) est représentée. Ces plans détaillent l'aspect extérieur : ouvertures (portes et fenêtres), matériaux de parement, balcons, toiture, etc.

·  Plans des niveaux (ou plans de l'intérieur) : Ils représentent l'aménagement de chaque étage. On y voit la disposition des pièces, l'emplacement des murs, des portes, des fenêtres, et les cotes (dimensions) des espaces.

·  Plan de la toiture : Il détaille la configuration de la toiture, la pente, les matériaux de couverture et les éventuels éléments comme les cheminées ou les panneaux solaires.

Constitution du fichier

   6

Salles d'eau

5

Chambres

0

Garages

2

Niveaux

150,00

   m²

Inventaire des pièces

Description compémentaire

Additional product information   132.6m

Le Rez de chaussée d'une superficie de de 132.60 m² comprend :

  • 02 Chambres confortables et bien éclairées chacune avec une avec Douche interne et un Dressing
  • 01 WC visiteur moderne et fonctionnel
  • 01 Cuisine ouverte dotée d'01 Cellier et d'01 Buanderie
  • 01 Salle à manger conviviale pour vos repas en famille
  • 01 Séjour chaleureux et lumineux

 

L'étage d'une superficie de 118.00m² comprend :

  • 03 Chambres confortables et bien éclairées chacune avec une avec Douche interne, un Dressing et une Terrasse

 

Yaoundé

Cameroun

contact@masterdesign1.com

Tél: +237699048083

Store Regulations

Privacy policy

Delivery

Returns & exchanges

Website created by Master Design.      Contact: +237 699 04 80 83